Backbone

Architecture and Urban Design, Polimi

Site: Milan, Italy

Date: 10/2018-02/2019

Supervisor: Nikos Ktenàs, Lorenzo Guzzini, Marcello Galiotto

Collaborator: Sha Xiao

A city map with black building outlines, streets, and surrounding labels indicating directions and distances, with a large circular radius overlay.

Citta Studi is an open campus with a block containing buildings for universities and research institutes. Create an order to link the central part to the backside beside the railway.

Line drawings of four urban landmarks with labels: Piazza Leonardo, Via Carlo Pascal, Via Peroni, Railway Tunnel.
Aerial view of an urban area with a labeled architectural plan overlay on the right side, including sections for a tower, platform, classroom, service road, dormitory, bridge, conference, exhibition, and library.
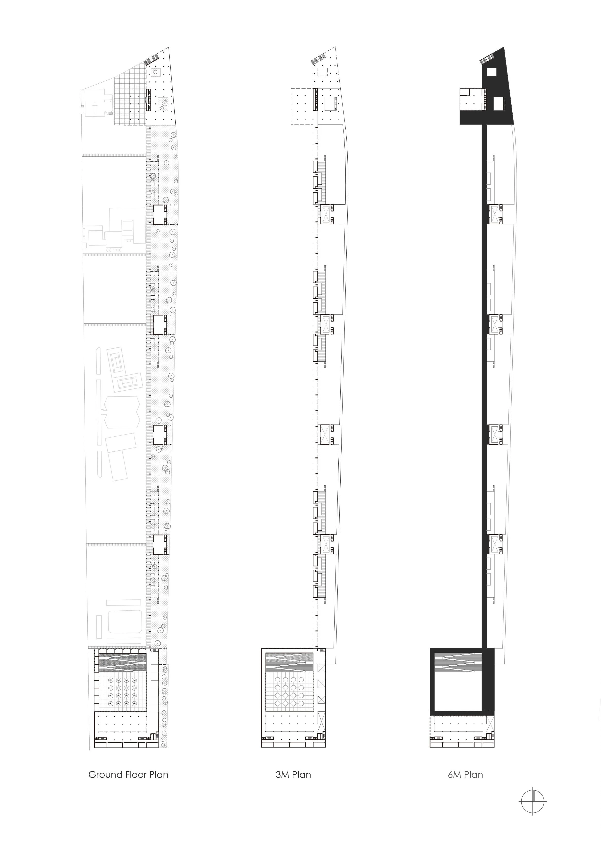
Architectural plans of a building, including a ground floor plan, 3rd floor plan, and 6th floor plan, displayed side by side.
Architectural model of a long, elevated building with multiple sections and a tall, narrow tower at one end, situated among urban structures.

Citta Studi is an open campus with a block containing buildings for universities and research institutes. Create an order to link the central part to the backsidThere are four main elements in the project: the tower, library, pavillions and bridge. The bridge connects them together at the same time it creates a continue facade when people walk on Via Camillion Golgi rather than see the railway directly. In 3-meter height, some rooms are used for students such as study room, multifunction room. On one side it could see the sports fields, on the other side, it could enjoy the view of the courtyard.

Architectural diagrams of four building structures labeled Tower, Library, Pavilion, and Bridge & Platform, showcasing isometric views with surrounding landscaping and pathways.
An architectural rendering of a modern multi-story building with distinctive stacked, offset sections and glass facades, situated in an urban setting with trees, a street, and people walking around.
An architectural illustration of a modern outdoor space featuring a concrete bridge, a tall white building with small windows, a brick wall on the right, and several people including children and adults walking or sitting in the area, with trees and a cloudy sky.

Tower

Our idea started with the nowadays situation of Citta Studi. As a city of the students, it needs an identity space or building. For this reason, we chose a multifunction tower located in the corner of Via Camillion Golgi, also as a gate when people enter from Lambrate station. The tower consists of two parts, the transportation block and the transparent cuboids. As the bridge is a horizontal path, the transportation volume will be in the same line but in a vertical way. It connects different boxes to a different level. The inside boxes have diverse functions, some for office, some for an exhibition or conference. Due to the gap between boxes, it provides platforms for people to enjoy the view of the city.

Architectural model of a modern multi-story building with open floors, set on a white base with a small outdoor area.
Architectural site plan showing a large rectangular building with interior details, a smaller square structure, a rooftop solar panel, and an open area with four posts, all on an irregular plot of land.
Architectural blueprint showing the front elevation of a modern multi-story building with large glass windows and balconies.

Bridge and Pavillions

Children playing soccer and sitting on grass field near an overpass, with trees and a tall building in background.
Architectural section drawing of a building showing construction layers, materials, and structural components, with a list of materials and specifications.

Library

Architectural model of a modern building with a large open courtyard and multiple floors, featuring rectangular windows and a flat roof.
Architectural floor plans for a sports or event complex, including sections for volleyball courts, seating areas, and other facilities.